Pacific Avenue & Front Street - Pacific Station South Redevelopment

Pacific Station South Redevelopment

Welcome

Welcome to the City of Santa Cruz project page for the Pacific Station Redevelopment located south of Maple Avenue. Here you will find information about this project including the projects description, plan set, and future meetings relating to this project. You can also contact the City Project Planner by using the Question or Comment section below.

Project Description

  • Project Number: CP20-0138
  • Address: 818, 820, 822 Pacific Ave. & 325, 329 Front Street
  • Project Status: Visit Etrakit for Most Current Status and the Assigned Planner

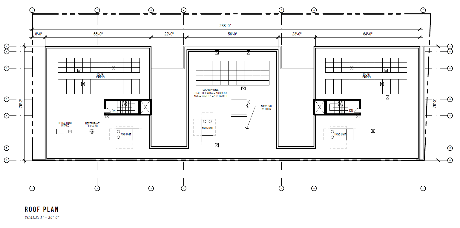
Coastal Permit to demolish three commercial buildings and construct a seven-story, mixed-use building with 70 affordable residential apartments, 15,228 square feet of ground floor commercial and

residential amenity space, and 15,665 feet of medical office space on the second floor, on a property located within the CBD/CZ-O/FP-O zone district and within the Pacific Avenue Retail District and Front Street/Riverfront Corridor subareas of the Downtown Plan.

Approval Process

This project received approval of a Coastal Permit by the Zoning Administrator on December 2, 2020.

Leasing Information

Pacific Station South leasing information, application links, unit styles, and income limits are available on the Find Affordable Housing-Apartments Currently Leasing Page. Leasing information can also be found at the temporary leasing office located at 324 Front Street, Suite 212, open Monday through Friday 9am-3pm.

Community Meetings/Webinars

A community meeting was held Monday, November 16 at 6 pm allowing for the project applicant and city planning staff to gather feedback from the public. Feedback from the community meeting was presented at the Zoning Administrator hearing of December 2nd, 2020.

Plan Set