Pacific Ave, 407

407 Pacific Image 2.png

Welcome

Welcome to the City of Santa Cruz project page for 407 Pacific Ave. Here you will find information about this project, including the projects description, plan set, and future meetings related to this project. For more information, please contact the assigned planner.

Project Description

  • Project Size: Significant Development Project
  • City of Santa Cruz Project Number: CP25-0122
  • Project Status: Visit Etrakit for Most Current Status and the Assigned Planner
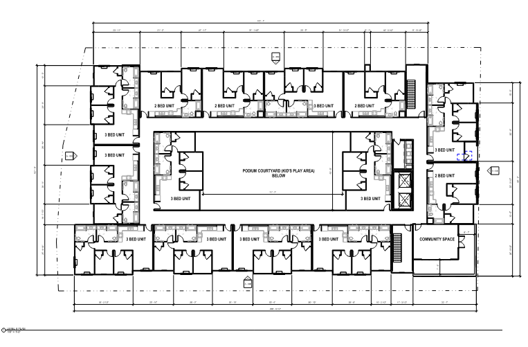
  • Preapplication (including review pursuant to SB330) for proposed demolition of existing building(s) and development of an eight-story residential development with 116, 100% affordable housing units serving as off-site affordable housing for development of 201 Front Street (Application CP25-0116), considered via Density Bonus request and pursuant to Assembly Bill (AB) 2011, on an existing site located in the R-T(C)/CZ-O (Tourist Residential district, Beach Commercial subdistrict/Coastal Zone Overlay) zone district (Environmental Review: Statutory Exemption pursuant to Public Resources Code Section 21080.66).

Application Materials

Location

407 Pacific Ave,   95060  View Map

Google Map